Современная архитектура стремится к минимализму, четким линиям и функциональности — именно эти принципы легли в основу новой линейки модульных домов в стиле Хайтек от компании «Пока Нет Дома». Это первый проект в нашей истории, где мы реализовали модульные дома с плоской крышей, высокими прямыми потолками и лаконичным фасадом. Такой дом не просто выделяется на фоне классических решений — он задаёт совершенно новый стандарт качества загородной жизни.
Плоская кровля, большие световые проемы, строгая геометрия и продуманное пространство — всё это создаёт ощущение европейского уровня комфорта, доступного теперь каждому в России. Благодаря заводскому производству наши модульные дома сохраняют идеальное качество сборки, точность линий и готовность к эксплуатации сразу после монтажа на участке.
Плоская кровля, большие световые проемы, строгая геометрия и продуманное пространство — всё это создаёт ощущение европейского уровня комфорта, доступного теперь каждому в России. Благодаря заводскому производству наши модульные дома сохраняют идеальное качество сборки, точность линий и готовность к эксплуатации сразу после монтажа на участке.
Современный стиль Хайтек — новый уровень комфорта
Хайтек — это архитектура будущего, воплощённая в реальном доме уже сегодня. Прямые линии, отсутствие лишних элементов, визуальная лёгкость и технологичность создают абсолютно новое впечатление от загородного пространства. По фото можно увидеть, насколько гармонично дом смотрится на участке, как фасады в разных цветовых решениях подчеркивают его минималистичную эстетику, а панорамные окна делают его наполненным светом.
Плоская крыша — это не только стиль, но и удобство. Конструкция выдерживает различные климатические нагрузки, проста в обслуживании и идеально подходит для современных архитектурных решений. В сочетании с продуманной геометрией и качественной отделкой дом становится эффектным и функциональным одновременно.
Плоская крыша — это не только стиль, но и удобство. Конструкция выдерживает различные климатические нагрузки, проста в обслуживании и идеально подходит для современных архитектурных решений. В сочетании с продуманной геометрией и качественной отделкой дом становится эффектным и функциональным одновременно.
Разные варианты фасадов и индивидуальное оформление
Мы предлагаем несколько цветовых решений фасадной отделки, чтобы вы могли подчеркнуть индивидуальность своего дома. Контрастные оттенки, натуральные фактуры, современные панели — всё сочетается с архитектурной концепцией Хайтек и помогает создать уникальный внешний вид.
Кроме того, можно выбрать стильные террасы, которые идеально подходят для отдыха. Это место, где приятно встречать утро с чашкой кофе, проводить время с семьёй или просто наслаждаться природой. Террасы визуально расширяют пространство, создают дополнительную зону отдыха и делают модульный дом ещё более привлекательным.
Кроме того, можно выбрать стильные террасы, которые идеально подходят для отдыха. Это место, где приятно встречать утро с чашкой кофе, проводить время с семьёй или просто наслаждаться природой. Террасы визуально расширяют пространство, создают дополнительную зону отдыха и делают модульный дом ещё более привлекательным.
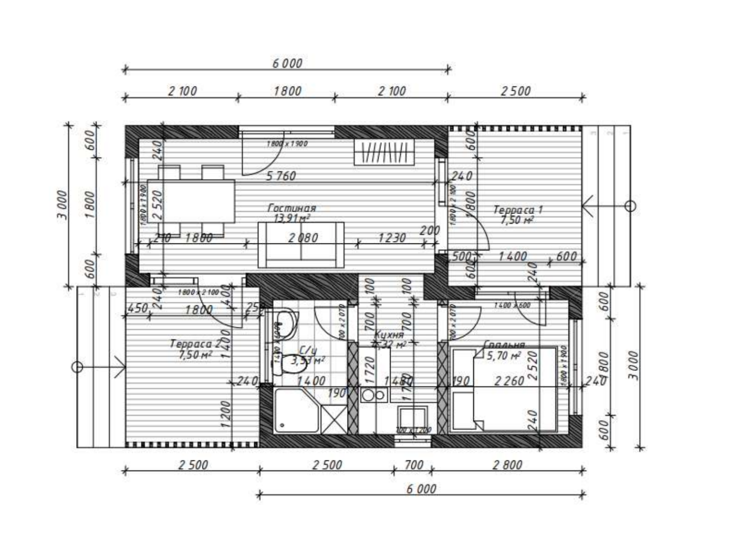
Продуманные планировки и практичные решения
Готовые проекты — от 30 до 72 м²
Перед выбором модульного дома обязательно загляните в раздел «Проекты и цены модульных домов» на нашем сайте. Там представлены модели площадью от 30 до 72 м², каждая из которых может быть адаптирована под ваши задачи. Вы сможете сравнить планировки, внешние решения и подобрать дом, который полностью соответствует вашему стилю жизни и бюджету.
Хотите увидеть реальные примеры модульных домов?
Посмотрите живые отзывы владельцев и видео процесса установки:
👉 Отзывы о компании «Пока нет Дома»
Изучите все модели и стоимость:
👉 Проекты и цены модульных домов
Подписывайтесь, чтобы следить за доставками, новостями и видео с производства:
👉 Telegram-канал «Модульные дома с доставкой по России»
👉 Отзывы о компании «Пока нет Дома»
Изучите все модели и стоимость:
👉 Проекты и цены модульных домов
Подписывайтесь, чтобы следить за доставками, новостями и видео с производства:
👉 Telegram-канал «Модульные дома с доставкой по России»
Получите консультацию по модульному дому!
Специалисты подробно расскажут о проектах, рассчитают стоимость под ваш участок и подскажут, какой дом подойдет именно вам.
Телефон: +7 (3452) 52-94-27
Модульный дом с плоской крышей в стиле Хайтек — это сочетание эстетики, практичности и технологичности, которое выводит загородную жизнь на новый уровень.
Телефон: +7 (3452) 52-94-27
Модульный дом с плоской крышей в стиле Хайтек — это сочетание эстетики, практичности и технологичности, которое выводит загородную жизнь на новый уровень.