Жизнь в Новом Уренгое — это постоянное испытание на прочность. Здесь климат диктует свои правила: температура зимой легко опускается ниже −40…−50°C, сильные ветра усиливают ощущение холода, а полярная ночь растягивается на долгие месяцы. В таких условиях дом — это не просто место для жизни. Это основа комфорта, безопасности и стабильности всей семьи.
Именно поэтому классическое строительство на Крайнем Севере часто становится проблемой. Вечная мерзлота требует сложных и дорогих фундаментных решений, логистика материалов обходится дорого, а сроки строительства растягиваются на годы. В итоге люди получают не дом мечты, а затяжной стресс и постоянное удорожание проекта.
На этом фоне всё больше жителей Ямало-Ненецкого автономного округа обращают внимание на альтернативу — современные модульные дома под ключ. И один из самых востребованных вариантов сегодня — Барн 88 от компании «Пока нет Дома».
Это не временное решение и не дачный формат. Это полноценный жилой дом площадью 88 м², рассчитанный на круглогодичное проживание большой семьи в суровом северном климате.
Именно поэтому классическое строительство на Крайнем Севере часто становится проблемой. Вечная мерзлота требует сложных и дорогих фундаментных решений, логистика материалов обходится дорого, а сроки строительства растягиваются на годы. В итоге люди получают не дом мечты, а затяжной стресс и постоянное удорожание проекта.
На этом фоне всё больше жителей Ямало-Ненецкого автономного округа обращают внимание на альтернативу — современные модульные дома под ключ. И один из самых востребованных вариантов сегодня — Барн 88 от компании «Пока нет Дома».
Это не временное решение и не дачный формат. Это полноценный жилой дом площадью 88 м², рассчитанный на круглогодичное проживание большой семьи в суровом северном климате.
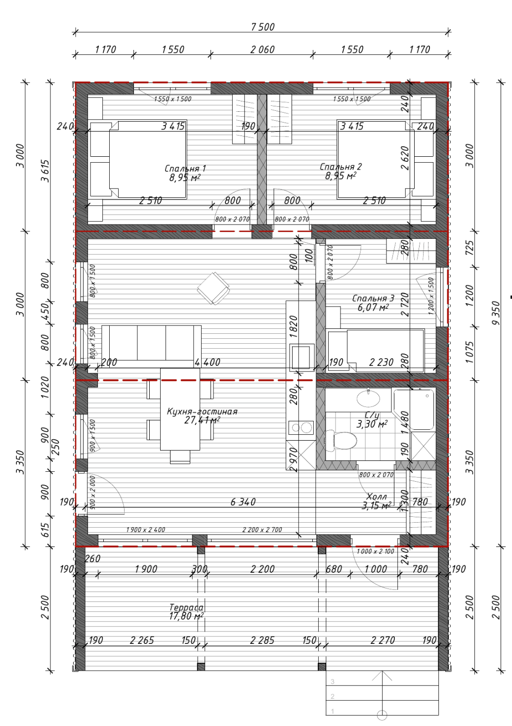
Пространство, в котором хочется жить, а не выживать
Барн 88 изначально проектировался как семейный дом, а не как компактное жильё “на первое время”. Внутреннее пространство продумано таким образом, чтобы каждый член семьи чувствовал себя комфортно даже в условиях долгой зимы и ограниченного времени пребывания на улице.
Высокие потолки до 3 метров создают ощущение свободы и воздуха — это особенно важно в период полярной ночи, когда психологическое давление от замкнутого пространства ощущается сильнее. Просторная гостиная объединена с кухней-столовой, формируя центр жизни дома, где проходит большая часть времени всей семьи.
Спальные зоны позволяют удобно разместить от 4 до 6 человек, при этом сохраняется приватность для родителей и детей. Тамбур и технические помещения выполняют важную функцию в северном климате — они работают как буфер между улицей и жилым пространством, не позволяя холоду проникать внутрь.
Отдельное внимание стоит уделить свету. Панорамное остекление (при выборе этой опции) кардинально меняет восприятие пространства, добавляя естественного освещения даже в короткие зимние дни. В сочетании с натуральной внутренней отделкой из дерева это формирует тёплую, уютную атмосферу, которая критически важна для жизни на Севере.
Высокие потолки до 3 метров создают ощущение свободы и воздуха — это особенно важно в период полярной ночи, когда психологическое давление от замкнутого пространства ощущается сильнее. Просторная гостиная объединена с кухней-столовой, формируя центр жизни дома, где проходит большая часть времени всей семьи.
Спальные зоны позволяют удобно разместить от 4 до 6 человек, при этом сохраняется приватность для родителей и детей. Тамбур и технические помещения выполняют важную функцию в северном климате — они работают как буфер между улицей и жилым пространством, не позволяя холоду проникать внутрь.
Отдельное внимание стоит уделить свету. Панорамное остекление (при выборе этой опции) кардинально меняет восприятие пространства, добавляя естественного освещения даже в короткие зимние дни. В сочетании с натуральной внутренней отделкой из дерева это формирует тёплую, уютную атмосферу, которая критически важна для жизни на Севере.
Конструкция, рассчитанная на экстремальные условия ЯНАО
Когда речь идёт о доме в Новом Уренгое, внешний вид — это вторично. На первом месте всегда стоит надёжность, тепло и устойчивость к нагрузкам.
Барн 88 построен по каркасной технологии с использованием сухой строганой древесины, что исключает деформации и повышает долговечность конструкции. Все элементы проходят заводской контроль качества, что невозможно гарантировать при строительстве “в поле”.
Кровля выполнена из профлиста толщиной 0,45 мм — это решение, рассчитанное на серьёзные снеговые нагрузки, характерные для Ямала. Внешняя отделка из планкена хвойных пород с заводской покраской в два слоя защищает дом от влаги, ветра и резких перепадов температур.
Но ключевым фактором остаётся теплоизоляция. В Барн 88 используется утепление толщиной 150 мм по всему контуру — стены, пол и потолок. В сочетании с качественными двухкамерными стеклопакетами это позволяет минимизировать теплопотери даже при экстремально низких температурах.
Важно и то, что дом “дышит” правильно. Продуманная система вентиляции предотвращает образование конденсата — одной из главных проблем северных домов — и поддерживает здоровый микроклимат внутри.
Барн 88 построен по каркасной технологии с использованием сухой строганой древесины, что исключает деформации и повышает долговечность конструкции. Все элементы проходят заводской контроль качества, что невозможно гарантировать при строительстве “в поле”.
Кровля выполнена из профлиста толщиной 0,45 мм — это решение, рассчитанное на серьёзные снеговые нагрузки, характерные для Ямала. Внешняя отделка из планкена хвойных пород с заводской покраской в два слоя защищает дом от влаги, ветра и резких перепадов температур.
Но ключевым фактором остаётся теплоизоляция. В Барн 88 используется утепление толщиной 150 мм по всему контуру — стены, пол и потолок. В сочетании с качественными двухкамерными стеклопакетами это позволяет минимизировать теплопотери даже при экстремально низких температурах.
Важно и то, что дом “дышит” правильно. Продуманная система вентиляции предотвращает образование конденсата — одной из главных проблем северных домов — и поддерживает здоровый микроклимат внутри.
Почему модульный дом выигрывает у классического строительства
Если рассматривать строительство дома в Новом Уренгое с практической точки зрения, становится очевидно: классический подход уступает по всем ключевым параметрам.
Во-первых, фундамент. В условиях вечной мерзлоты он требует сложных инженерных решений и серьёзных затрат. Во-вторых, сроки — строительство может растянуться на 1,5–3 года. В-третьих, логистика: доставка материалов на Север автоматически увеличивает бюджет проекта.
Модульный дом Барн 88 полностью меняет эту модель.
Основная часть работ выполняется на заводе, в контролируемых условиях. Это означает стабильное качество, отсутствие погодных рисков и чёткое соблюдение сроков. После изготовления дом доставляется в Новый Уренгой и собирается на участке всего за несколько дней.
Фундамент на винтовых сваях устанавливается быстро и подходит для сложных грунтов, характерных для ЯНАО. Это решение позволяет избежать дорогостоящих бетонных работ и сократить общий бюджет.
В итоге вместо многолетнего строительства вы получаете готовый дом под ключ всего за 2–3 месяца.
Во-первых, фундамент. В условиях вечной мерзлоты он требует сложных инженерных решений и серьёзных затрат. Во-вторых, сроки — строительство может растянуться на 1,5–3 года. В-третьих, логистика: доставка материалов на Север автоматически увеличивает бюджет проекта.
Модульный дом Барн 88 полностью меняет эту модель.
Основная часть работ выполняется на заводе, в контролируемых условиях. Это означает стабильное качество, отсутствие погодных рисков и чёткое соблюдение сроков. После изготовления дом доставляется в Новый Уренгой и собирается на участке всего за несколько дней.
Фундамент на винтовых сваях устанавливается быстро и подходит для сложных грунтов, характерных для ЯНАО. Это решение позволяет избежать дорогостоящих бетонных работ и сократить общий бюджет.
В итоге вместо многолетнего строительства вы получаете готовый дом под ключ всего за 2–3 месяца.
Экономика проекта: понятная и предсказуемая
Финансовая прозрачность — ещё один важный аргумент в пользу модульного дома.
Базовая стоимость Барн 88 составляет 4 820 000 ₽. Даже с учётом доставки в северный регион, монтажа и устройства фундамента итоговая цена остаётся значительно ниже, чем у капитального строительства аналогичной площади.
При этом вы заранее понимаете, за что платите. Нет “плавающих” расходов, которые неизбежно возникают при традиционной стройке.
Дополнительным преимуществом является возможность оформления ипотеки и сопровождение сделки со стороны компании. Это упрощает процесс покупки и делает дом доступным для большего числа семей.
Базовая стоимость Барн 88 составляет 4 820 000 ₽. Даже с учётом доставки в северный регион, монтажа и устройства фундамента итоговая цена остаётся значительно ниже, чем у капитального строительства аналогичной площади.
При этом вы заранее понимаете, за что платите. Нет “плавающих” расходов, которые неизбежно возникают при традиционной стройке.
Дополнительным преимуществом является возможность оформления ипотеки и сопровождение сделки со стороны компании. Это упрощает процесс покупки и делает дом доступным для большего числа семей.
Как меняется жизнь семьи после переезда
Главное, что отмечают владельцы Барн 88 — это ощущение стабильности и уюта.
Представьте типичный зимний вечер в Новом Уренгое: за окном метель и −45°C, а внутри — тепло, светло и спокойно. Дети играют в гостиной, родители готовят ужин, и дом становится настоящим центром жизни, а не просто местом ночёвки.
Благодаря энергоэффективности расходы на отопление остаются умеренными, даже в самые холодные месяцы. Натуральные материалы создают комфортный микроклимат, что особенно важно для здоровья детей.
Дом легко адаптируется под современные технологии. Можно установить систему “умный дом”, управлять отоплением удалённо, оптимизировать энергопотребление.
Кроме того, модульная конструкция позволяет в будущем расширить жилое пространство — это важный фактор для растущей семьи.
Представьте типичный зимний вечер в Новом Уренгое: за окном метель и −45°C, а внутри — тепло, светло и спокойно. Дети играют в гостиной, родители готовят ужин, и дом становится настоящим центром жизни, а не просто местом ночёвки.
Благодаря энергоэффективности расходы на отопление остаются умеренными, даже в самые холодные месяцы. Натуральные материалы создают комфортный микроклимат, что особенно важно для здоровья детей.
Дом легко адаптируется под современные технологии. Можно установить систему “умный дом”, управлять отоплением удалённо, оптимизировать энергопотребление.
Кроме того, модульная конструкция позволяет в будущем расширить жилое пространство — это важный фактор для растущей семьи.
Быстрый и понятный процесс покупки
Процесс приобретения Барн 88 максимально упрощён и прозрачен. После обращения в компанию менеджер рассчитывает стоимость с учётом доставки именно в ваш район ЯНАО. Далее подбирается комплектация, заключается договор, при необходимости оформляется ипотека.
Производство дома занимает от одного до двух месяцев. После этого модули доставляются в Новый Уренгой и монтируются на участке в течение нескольких дней. Подключение коммуникаций также может быть выполнено в рамках одного проекта.
В результате уже через 2–3 месяца после заявки вы получаете полностью готовый дом, в который можно сразу заезжать.
Производство дома занимает от одного до двух месяцев. После этого модули доставляются в Новый Уренгой и монтируются на участке в течение нескольких дней. Подключение коммуникаций также может быть выполнено в рамках одного проекта.
В результате уже через 2–3 месяца после заявки вы получаете полностью готовый дом, в который можно сразу заезжать.
Почему всё больше семей выбирают «Пока нет Дома»
Растущий спрос на модульные дома в ЯНАО — это не случайность. Люди ищут решения, которые дают результат быстро, предсказуемо и без лишних рисков.
Компания «Пока нет Дома» уже имеет опыт работы в северных регионах и учитывает специфику климата при проектировании и строительстве. Это выражается не только в технических характеристиках, но и в реальном комфорте проживания.
Для многих семей Барн 88 становится не просто домом, а долгожданной возможностью выйти на новый уровень жизни — без компромиссов по теплу, качеству и срокам.
Компания «Пока нет Дома» уже имеет опыт работы в северных регионах и учитывает специфику климата при проектировании и строительстве. Это выражается не только в технических характеристиках, но и в реальном комфорте проживания.
Для многих семей Барн 88 становится не просто домом, а долгожданной возможностью выйти на новый уровень жизни — без компромиссов по теплу, качеству и срокам.
Готовы к своему дому в Новом Уренгое?
Если вы планируете переезд в собственный дом или хотите заменить устаревшее жильё на современное и тёплое решение, Барн 88 — один из самых рациональных вариантов на рынке.
Оставьте заявку или свяжитесь с менеджером, чтобы получить точный расчёт стоимости с учётом доставки в ваш район ЯНАО, подобрать оптимальную комплектацию и узнать все детали.
Ваш тёплый, просторный и надёжный дом может быть готов уже через несколько месяцев — даже в условиях Крайнего Севера.
Специалисты подробно расскажут о проектах, рассчитают стоимость под ваш участок и подскажут, какие дома для глэмпинга подойдут именно вам.
Телефон: +7 (3452) 52-94-27
Посмотрите живые отзывы владельцев и видео процесса установки:
👉 Отзывы о компании «Пока нет Дома»
Изучите все модели и стоимость:
👉 Проекты и цены модульных домов
Подписывайтесь, чтобы следить за доставками, новостями и видео с производства:
👉 Telegram-канал «Модульные дома с доставкой по России»
Оставьте заявку или свяжитесь с менеджером, чтобы получить точный расчёт стоимости с учётом доставки в ваш район ЯНАО, подобрать оптимальную комплектацию и узнать все детали.
Ваш тёплый, просторный и надёжный дом может быть готов уже через несколько месяцев — даже в условиях Крайнего Севера.
Специалисты подробно расскажут о проектах, рассчитают стоимость под ваш участок и подскажут, какие дома для глэмпинга подойдут именно вам.
Телефон: +7 (3452) 52-94-27
Посмотрите живые отзывы владельцев и видео процесса установки:
👉 Отзывы о компании «Пока нет Дома»
Изучите все модели и стоимость:
👉 Проекты и цены модульных домов
Подписывайтесь, чтобы следить за доставками, новостями и видео с производства:
👉 Telegram-канал «Модульные дома с доставкой по России»