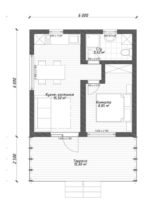
Установили Модульный дом в Тюмени по проекту Барн 51. Удобная и комфортная планировка, красивые фасады!
Вот так выглядит модульный дом под ключ!
Посмотрите полный видео обзор у нас в ВК сообществе - Видео обзор!
Видео отзывы о модульных домах - Отзывы о компании Пока нет Дома
Проекты и цены на наши дома - Проекты и цены модульных домов
Наш telegram- канал - Модульные дома с доставкой по России
Позвоните сейчас, все расскажем - 89326860009
Проекты и цены на наши дома - Проекты и цены модульных домов
Наш telegram- канал - Модульные дома с доставкой по России
Позвоните сейчас, все расскажем - 89326860009